Library plan and elevation in auto cad file
Description
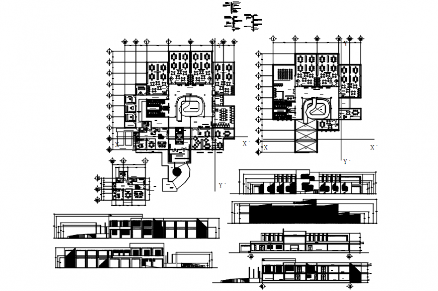
Library plan and elevation in auto cad file plan include detail of entry way and circulations of area with library reading area with chair and table view with washing area and food area and elevation include detail of floor and floor level with stair and entry way in view.
Uploaded by:
Eiz
Luna

