2d view drawings of housing units plan elevation and section autocad file
Description
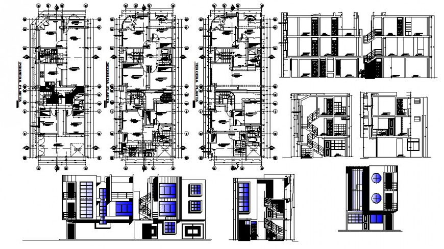
2d view drawings of housing units plan elevation and section autocad file that shows work plan drawings details of building units details and building Different sides of elevation and furniture layout details and other details also shown in drawings. Staircase and sectional details of the building also shown in drawings.
Uploaded by:
Eiz
Luna

