Drawings 2d view floor plan elevation and a section of building apartment autocad file
Description
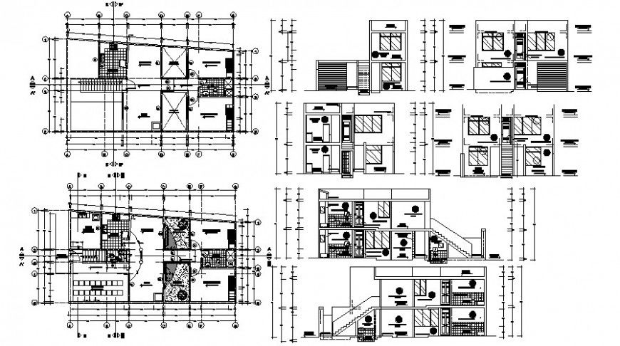
Drawings 2d view floor plan elevation and a section of building apartment autocad file that shows work plan drawings details of building units details and building Different sides of elevation and furniture layout details and other details also shown in drawings. Staircase and sectional details of the building also shown in drawings.
Uploaded by:
Eiz
Luna

