Plan and elevation with detail of hotel in AutoCAD file
Description
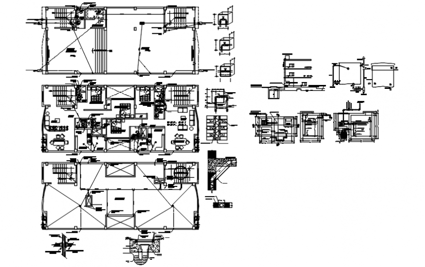
Plan and elevation with detail of hotel in AutoCAD file plan include detail of area distribution wall entry way parking area reception mesh area office washing area customer room and elevation with floor and floor level.
Uploaded by:
Eiz
Luna

