Different kitchen Plan and elevation in AutoCAD file
Description
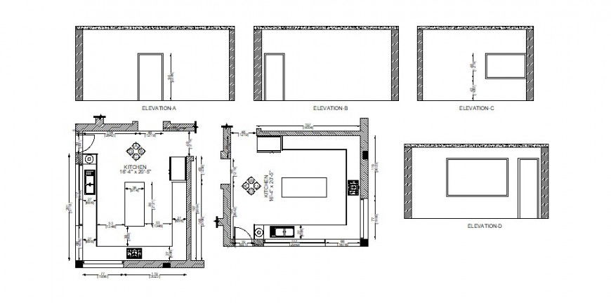
Different kitchen Plan and elevation in AutoCAD file plan include detail of wall and door with circulation area of kitchen entrance and platform view of kitchen with stove and sink elevation include detail of wall and its support.
Uploaded by:
Eiz
Luna

