Housing bungalow drawings details plan elevation and section dwg file
Description
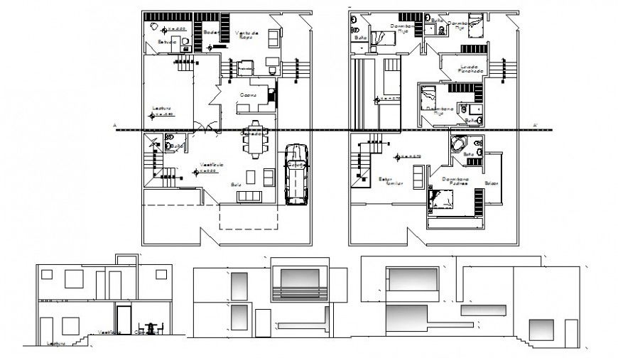
Housing bungalow drawings dteials plan elevation and section dwg file that shows work plan of housing units with furniture layout plan details and house different sides of elevation and sectional details with parking space and section line details also shown in drawings.
Uploaded by:
Eiz
Luna
