Housing units drawings 2d view center line plan autocad file
Description
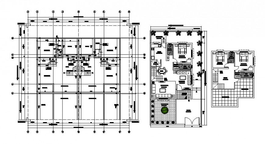
Housing units drawings 2d view center line plan autocad file that shows a work plan of housing bungalow with some furniture blocks details and door window blocks details also shown in drawings.Room dimension along with room details of drawing room bedroom area kitchen and dining area along with terrace plan details.
Uploaded by:
Eiz
Luna

