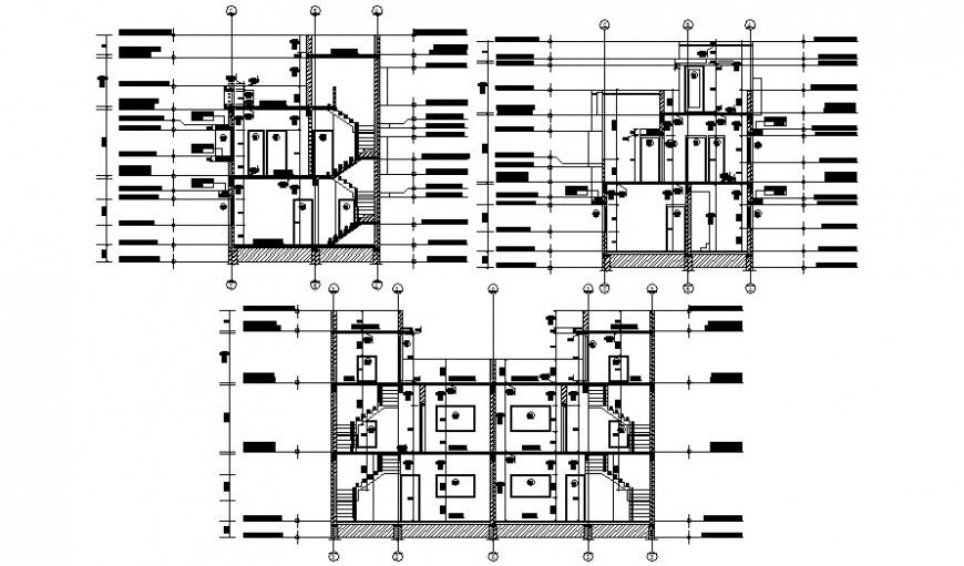
Apartment drawings 2d view elevation and section autocad software file
Description
Apartment drawings 2d view elevation and section autocad software file that shows building different sides of elevation and sectional details along with floor level details and leveling details with staircase details also shown in drawings.
Uploaded by:
Eiz
Luna

