Electrical installation layout plan drawings in housing apartment autocad file
Description
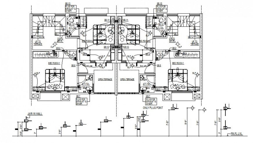
Electrical installation layout plan drawings in housing apartment autocad file that shows electrical installation layout plan details along with electrical wirings detauls and room details with fuse and curcuits detils with plug points and other detials.
Uploaded by:
Eiz
Luna
