T.V wall unit furniture in AutoCAD file
Description
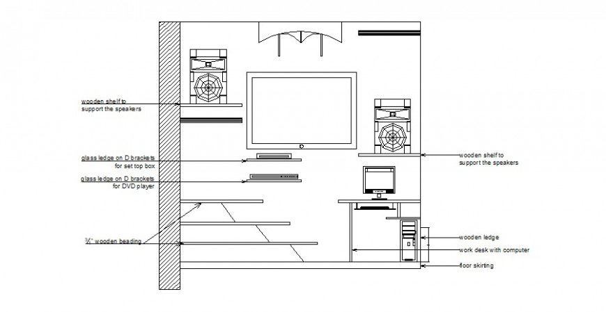
T.V wall unit furniture in AutoCAD file elevation include detail of base wooden beading desk with control system DVD player speaker in both side and T.V view in central area with wall.
Uploaded by:
Eiz
Luna

