Column and purlin structure details 2d view autocad file
Description
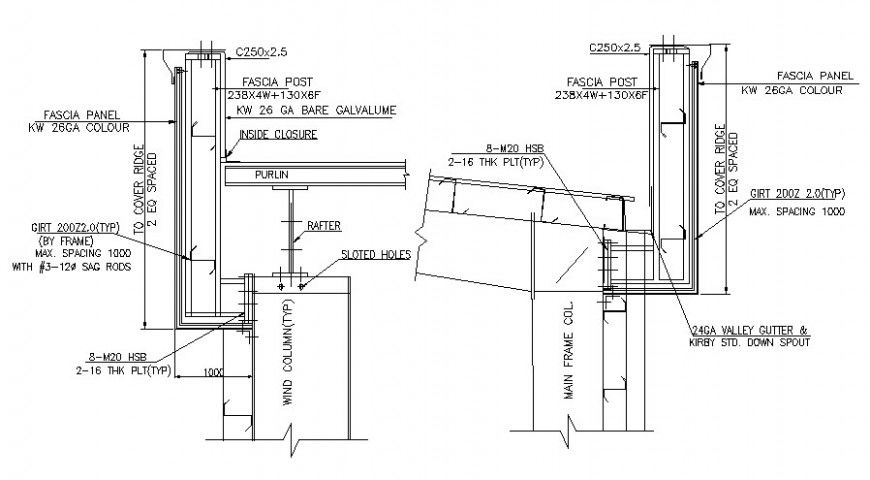
Column and purlin structure details 2d view autocad file that shows column structure details along with bar spacing and dimension details. Different angle sections details and welded and bolted joints and connections details are also shown in the drawing. Column dimension details also are shown in drawings.
Uploaded by:
Eiz
Luna

