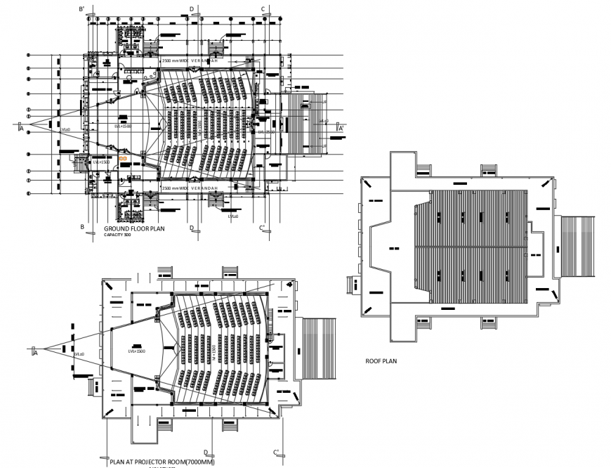
Auditorium hall floor plan distribution with roof plan cad drawing details dwg file
Description
Auditorium hall floor plan distribution with roof plan cad drawing details that includes a detailed view of main entry gate and security check, sensor details and screening rooms with screen, stairways and food point counters with male and female sanitary details, control room and ticket counter and vip lounge, kids game room and hall, passage with exit gate with luggage counter, seating and waiting lounge and admin office and much more of hall project.
Uploaded by:
Eiz
Luna

