Bus terminal architecture layout plan cad drawing details dwg file
Description
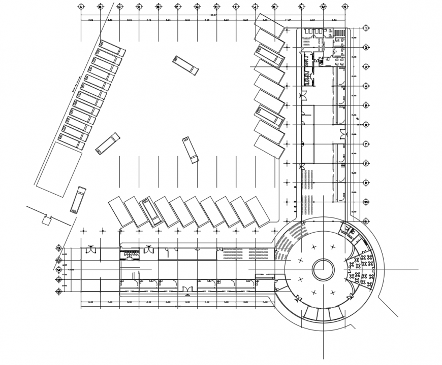
Bus terminal architecture layout plan cad drawing details that includes a detailed view of multiple offices, bus parking area, waiting for area details, shops, and other facilities, sanitary facilities details, dimension and measures details and much more of bus terminal details.
Uploaded by:
Eiz
Luna

