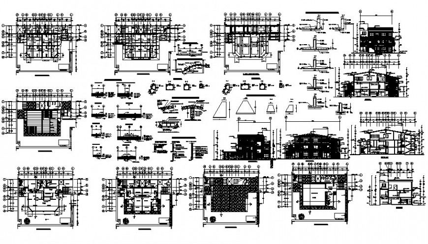
Drawing 2d view details of residential bungalow 2d view autiocad file
Description
Drawing 2d view details of residential bungalow 2d view autiocad file that includes building floor plan details along with floor level details and dimension hidden line details. Floor level details and other details of building units also shown in drawings. House different sides of elevation and sectional details also shown in drawings.
Uploaded by:
Eiz
Luna

