Drawings 2d view construction details of stairway autocad software file
Description
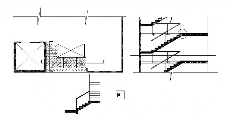
Drawings 2d view construction details of stairway autocad software file that shows staircase construction plan details with riser and tread details along with cut out details and floor slab details
Uploaded by:
Eiz
Luna

