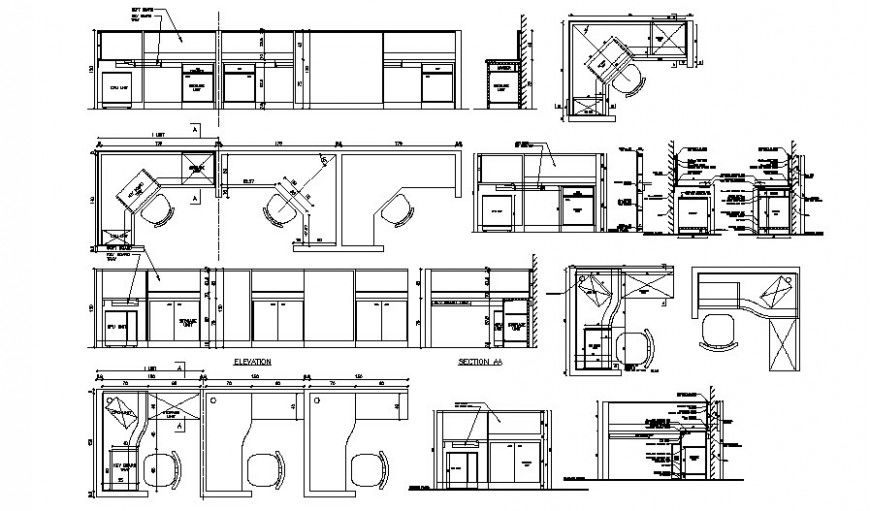
Office furniture desk detail drawings of table and chair 2d view autocad file
Description
Office furniture desk detail drawings of table and chair 2d view autocad file that shows table design details along with measurements details and front elevation top elevation of furniture units.
Uploaded by:
Eiz
Luna

