Residential area foundation plan with column detail in AutoCAD file
Description
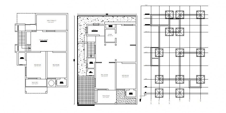
Residential area foundation plan with column detail in AutoCAD file plan include detail of wall and wall support area concrete area of terrace and foundation plan include column position with its distance in plan.
File Type:
DWG
File Size:
95 KB
Category::
Construction
Sub Category::
Construction Detail Drawings
type:
Gold
Uploaded by:
Eiz
Luna

