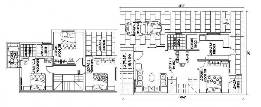
Floor plan of house with parking plan in AutoCAD software
Description
Floor plan of house with parking plan in AutoCAD software plan include detail of area distribution wall with road way bedroom kitchen washing area and dining area and roof area with wall and stair with terrace view and parking plan with its lot.
Uploaded by:
Eiz
Luna

