Cadet College Building Distribution Layout Plan DWG File Download
Description
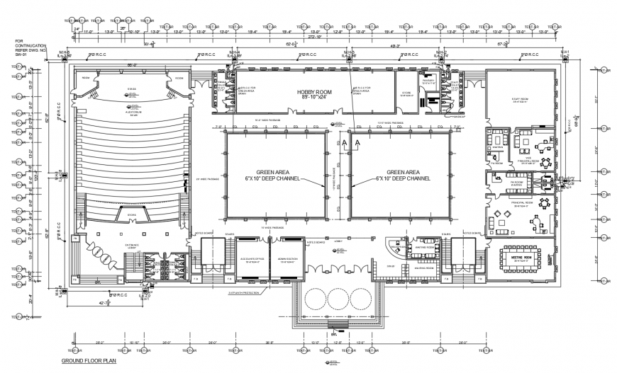
Distribution layout plan drawing details of cadet college building that includes a detailed view of main entry gate with parking area for students and staff and classrooms, stream departments, library and laboratory, staff room and cultural hall with sanitary for staff and sanitary for students, canteen/cafeteria, sports ground, meeting room, cleaning department, admission office, clerk room, principal or head office and much more of college project with free download feature.
Uploaded by:
Eiz
Luna

