House bedroom layout plan, furniture and interior cad drawing details dwg file
Description
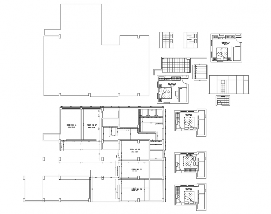
House bedroom layout plan, furniture and interior cad drawing details that include a detailed view of the bedroom elevation and sectional details with furniture block like a double bed, side table, bathroom details, doors and windows details with carpentry details, dimensions and decorative equipment details and much more of bedroom details.
File Type:
DWG
File Size:
120 KB
Category::
Interior Design
Sub Category::
Bathroom Interior Design
type:
Gold
Uploaded by:
Eiz
Luna

