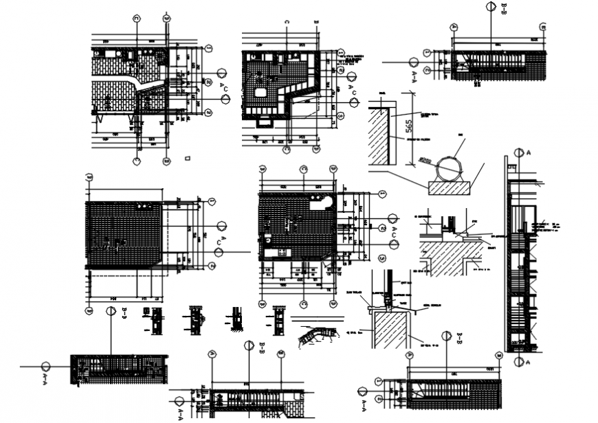
Brick and brick wall detail of building in AutoCAD file
Description
Brick and brick wall detail of building in AutoCAD file its include detail of area distribution with wall and brick area view with necessary view of area of wall and detail of flooring area of wall and door in view with necessary dimension.
File Type:
DWG
File Size:
4.4 MB
Category::
Construction
Sub Category::
Construction Detail Drawings
type:
Gold

Uploaded by:
Eiz
Luna

