Housing units of apartment plan elevation and section autocad file
Description
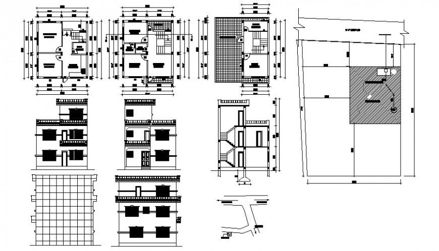
Housing units of apartment plan elevation and section autocad file that shows work plan drawings details of building with floor level details and door window blocks details along. Staircase details and rooms details also shown in drawings. Building different sides of elevation and sectional details also shown in drawings.
Uploaded by:
Eiz
Luna
