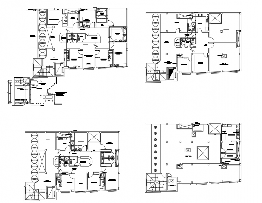
Hospital floor plan with sanitary installation cad drawing details dwg file
Description
Hospital floor plan with sanitary installation cad drawing details that includes a detailed view of reception area and waiting area with consultant room details specialized departments, operation theater and cleaning departments details pharmacy stores with sanitary equipment installation details, doors and ventilation details with plumbing details and interior details with dimensions details, wall section details and much more of hospital details.
Uploaded by:
Eiz
Luna
