Multi-familiar housing building plotting and site plan cad drawing details dwg file
Description
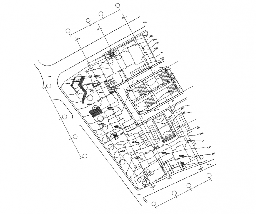
Multi-familiar housing building plotting and site plan cad drawing details that includes a detailed view of wide entry gate with indoor wide roads, plot or house numbers and total area details, common plot and road with house plot and children park space, senior citizen area, sample house with club house, running track and much more of site plan details.
File Type:
DWG
File Size:
617 KB
Category::
Urban Design
Sub Category::
Architecture Urban Projects
type:
Gold
Uploaded by:
Eiz
Luna

