Electrical installation 2d view work plan in house autocad softwrae file
Description
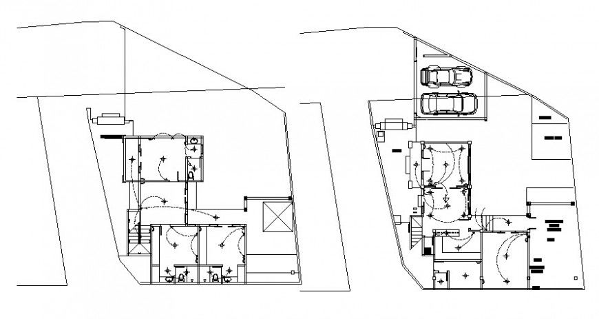
Electrical installation 2d view work plan in house autocad softwrae file that shows electrical wirings details along with earthing wire fuse and circuits details. Parking space detaol and room dimension details also shown in drawings.
Uploaded by:
Eiz
Luna

