Drawings 2d view floor plan apartments layout file autocad softwrae file
Description
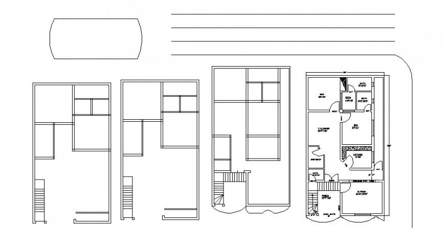
Drawings 2d view floor plan apartments layout file autocad softwrae file that shows floor plan drawings details of building nits along with dimension hidden line details. Door window blocks details and floor level details also shown in drawings. Room dimension and staircase details also shown in drawings.
Uploaded by:
Eiz
Luna

