2d drawings details of housing units elevation plan autocad software file
Description
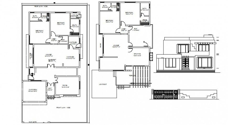
2d drawings details of housing units elevation plan autocad software file that shows work plan of house with room dimension details and floor level details along with parking space details and dimension hidden line details. Staircase and other details of building alos shown in drawings. House front elevation is also shown in drawings.
Uploaded by:
Eiz
Luna
