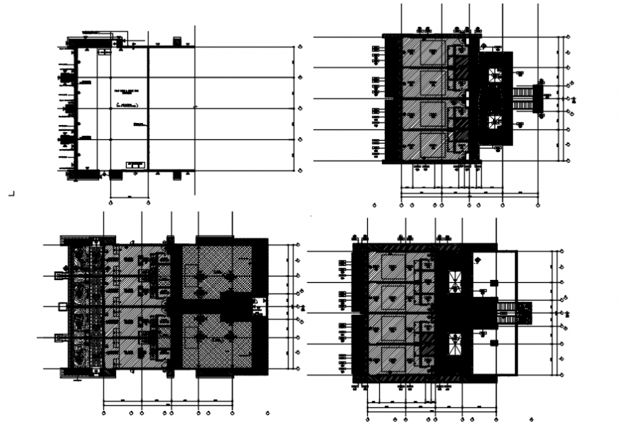
Floor plan of resort with pump room plan in AutoCAD file
Description
Floor plan of resort with pump room plan in AutoCAD file floor plan include detail of wall and area of circulation and distribution with living area and water resort area and pump room plan with position of pump and its circulation of resort plan.
Uploaded by:
Eiz
Luna
