Plumbing detail with dump in PVC pipe and hanging detail in AutoCAD
Description
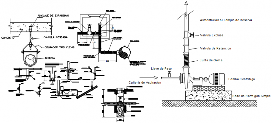
Plumbing detail with dump in PVC pipe and hanging detail in AutoCAD detail include area of clamp and PVC pipe view with necessary detail of area of valve and band, pipe and expansion anchorage with necessary detail and dimension.
File Type:
DWG
File Size:
2.7 MB
Category::
Dwg Cad Blocks
Sub Category::
Autocad Plumbing Fixture Blocks
type:
Gold

Uploaded by:
Eiz
Luna

