Indirect measurement substation and exterior light installation in AutoCAD
Description
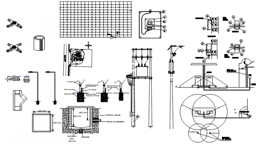
Indirect measurement substation and exterior light installation in AutoCAD its include detail of plan and elevation of electrical automation system with Indirect measurement substation and light with installation of light pole with necessary electrical detail in view.
File Type:
DWG
File Size:
466 KB
Category::
Electrical
Sub Category::
Electrical Automation Systems
type:
Gold

Uploaded by:
Eiz
Luna

