Local hostel building floor plan distribution drawing details dwg file
Description
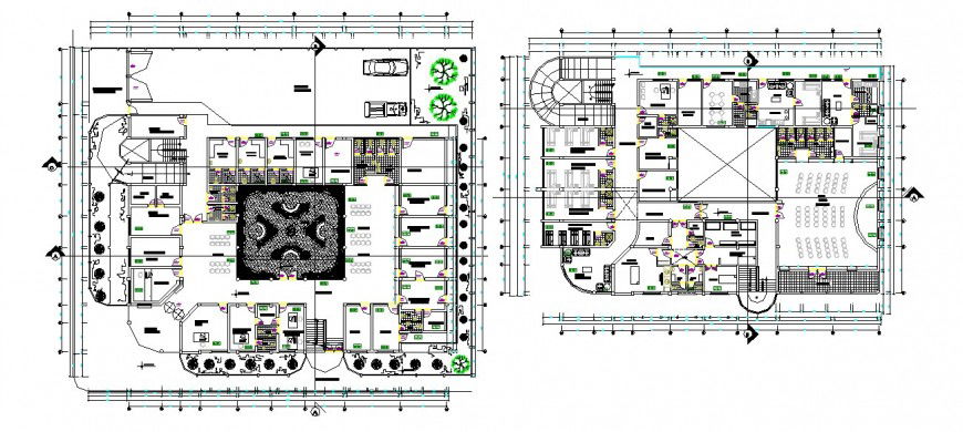
Local hostel building floor plan distribution drawing details that includes a detailed view of reception area, waiting area, gym with waiting lounge, hostel offices, laundry room, warden, indoor stairs provide. Sanitary facilities with indoor doors and windows and rooms and much more of hostel project.
Uploaded by:
Eiz
Luna

