Electrical installation of clinic fifth floor plan in AutoCAD
Description
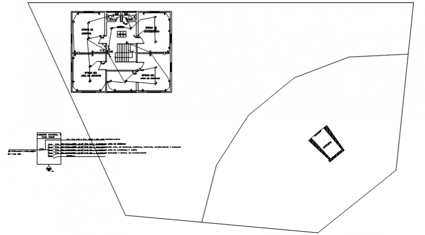
Electrical installation of clinic fifth floor plan in AutoCAD its include area of clinic with medical consultant area with its distribution and single line of electrical area with its control system and view with necessary point of control.
Uploaded by:
Eiz
Luna

