Piping and stair detail of elevation in construction view for AutoCAD
Description
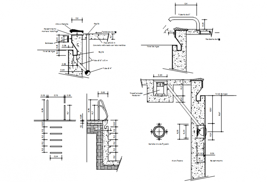
Piping and stair detail of elevation in construction view for AutoCAD its include detail of area of stair and piping view with concrete area and view of tube foundation and Transformer and reducer fixing view in construction area.
File Type:
DWG
File Size:
345 KB
Category::
Construction
Sub Category::
Construction Detail Drawings
type:
Gold
Uploaded by:
Eiz
Luna

