Restaurants building plan elevation and section dwg autocad file
Description
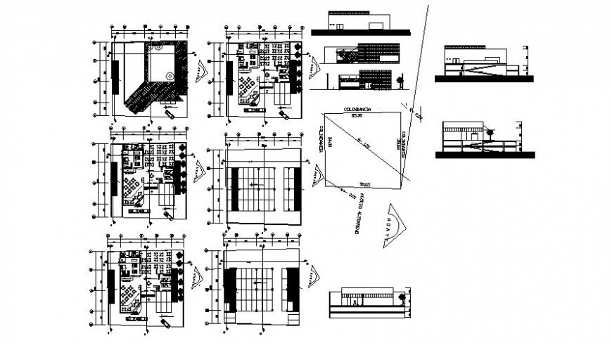
Restaurants building plan elevation and section dwg autocad file that shows work plan drawings details of building units along with floor level details and door window block details. Terrace plan and room dimension details also shown in drawings. Dimension hidden line details and plot area details also shown in drawings.
Uploaded by:
Eiz
Luna

