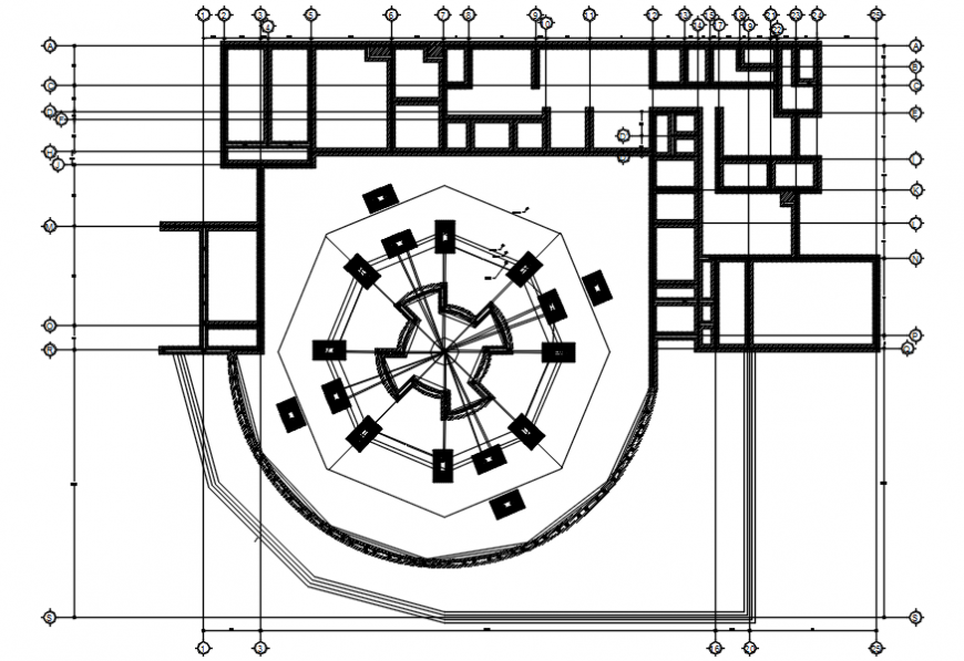
Column and wall detail of construction view of hotel in AutoCAD
Description
Column and wall detail of construction view of hotel in AutoCAD its include detail of area of base support of column with wall and concrete area and flooring area of wall and column detail with necessary dimension in column area.
Uploaded by:
Eiz
Luna

