Working plan of apartment in AutoCAD software

Working plan of apartment in AutoCAD software
Profile

Uploaded by:

Eiz

Luna

Description

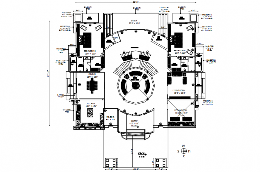
Working plan of apartment in AutoCAD software its include detail of two division and Centre of entry way with hall and bedroom kitchen and washing area with store dresses and lift area with store and lift area.

Profile

Uploaded by:

Eiz

Luna

find Latest

Related Files