All floors sanitary plan and installation drawing details of hotel building dwg file
Description
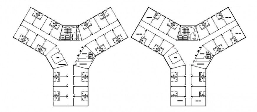
All floors sanitary plan and installation drawing details of hotel building here you can download a free auto-cad file of toilet plan details with toilet sectional details and passage, sanitary equipment installation details, doors and ventilation details with plumbing details and interior details with dimensions details, wall section details and much more of sanitary installation details.
Uploaded by:
Eiz
Luna

