RCC slab with concrete area in elevation of building in AutoCAD
Description
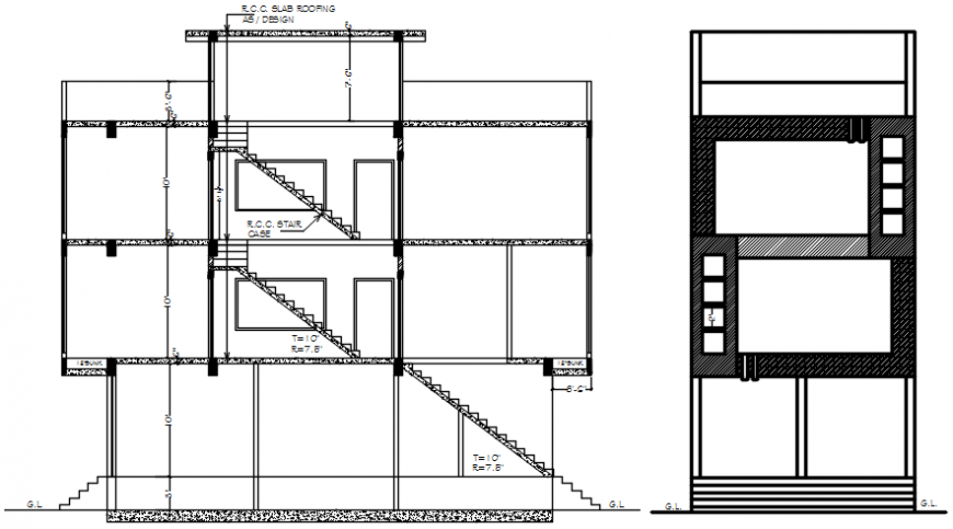
RCC slab with concrete area in elevation of building in AutoCAD elevation include detail of base with stair floor and floor level and stair area with necessary dimension and side view with wall and its constriction.
File Type:
DWG
File Size:
424 KB
Category::
Construction
Sub Category::
Construction Detail Drawings
type:
Gold
Uploaded by:
Eiz
Luna

