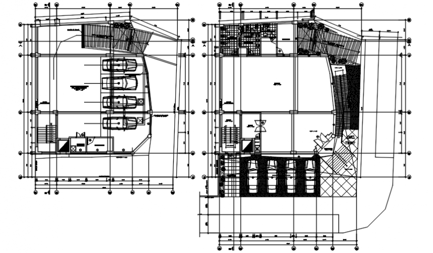
Basement and first floor plan of hostel in AutoCAD file
Description
Basement and first floor plan of hostel in AutoCAD file its include detail of area distribution and view of flooring area with lot of parking and lot number in out way with washing area in plan of floor of hostel.

Uploaded by:
Eiz
Luna

