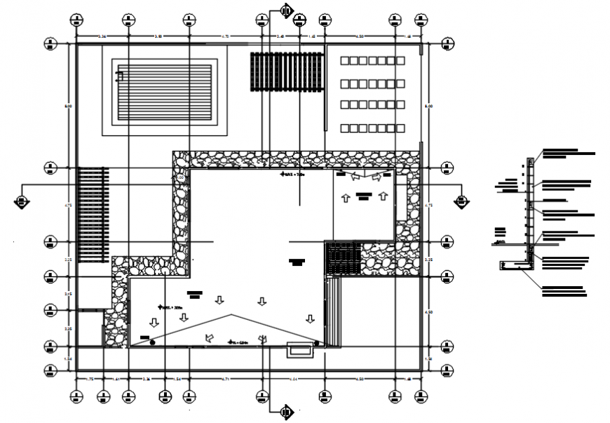
Plan of concrete area with construction view in AutoCAD
Description
Plan of concrete area with construction view in AutoCAD its include detail oof area of distribution and circulation and column and wall support construction view with frame and wall support with necessary detail.
File Type:
DWG
File Size:
3.9 MB
Category::
Construction
Sub Category::
Construction Detail Drawings
type:
Gold
Uploaded by:
Eiz
Luna

