Foundation plan of housing in AutoCAD file
Description
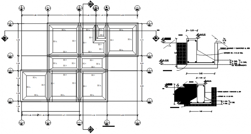
Foundation plan of housing in AutoCAD file plan include detail of wall and column position and its view with way of entry slab and column support wall distance of column with necessary dimension in foundation plan with column and leader detail of construction.
Uploaded by:
Eiz
Luna
