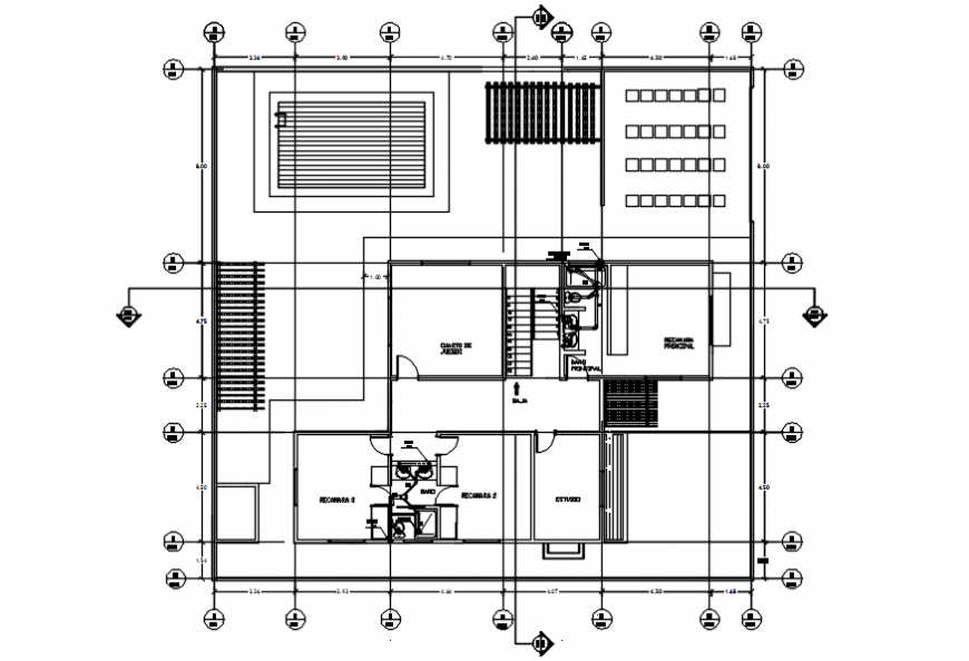
Second floor plans of housing area in AutoCAD file
Description
Second floor plans of housing area in AutoCAD file plan include detail of area distribution and view of bedroom kitchen and washing area with wall and door and window position view with necessary dimension.
Uploaded by:
Eiz
Luna

