Second floor house plan with pipe line installation in autocad
Description
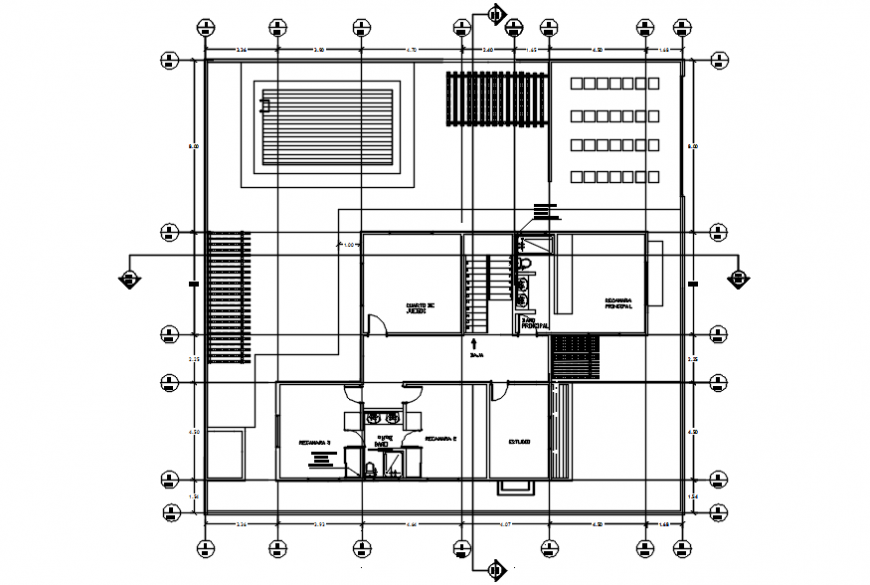
Second floor house plan with pipe line installation in AutoCAD its include detail of area distribution and circulation and wall with single water line and washing area single pipe line position joint and electrical system of housing floor plan.
Uploaded by:
Eiz
Luna

