Second floor electrical installation of house in AutoCAD
Description
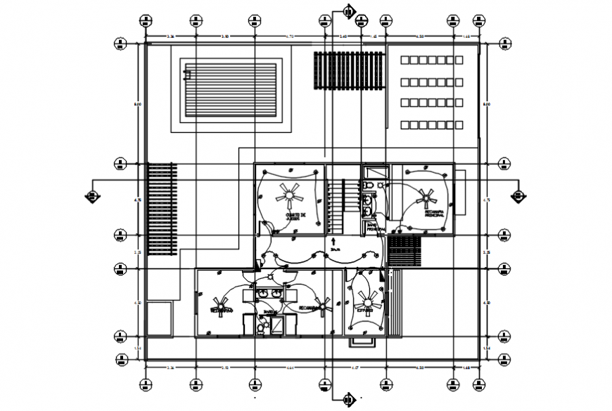
Second floor electrical installation of house in AutoCAD plan include detail of area of house area distribution with wall and single line view of electrical view with electrical control and point with joint of light system of electrical view.

Uploaded by:
Eiz
Luna

