Basement and first floor plan of house in AutoCAD file
Description
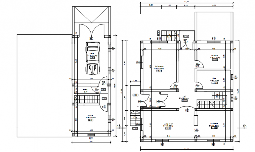
Basement and first floor plan of house in AutoCAD file plan include detail of area of circulation with necessary view and view of basement area of parking and first floor plan with bedroom kitchen and washing area with necessary detail and dimension.
Uploaded by:
Eiz
Luna

