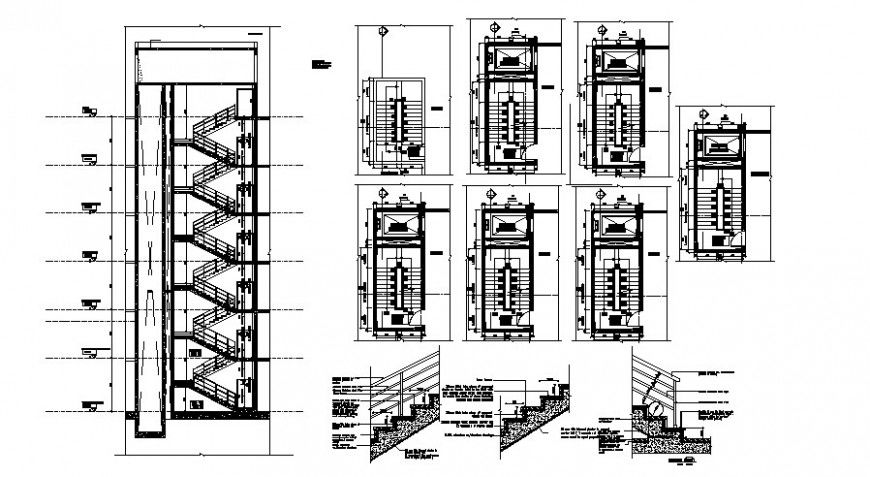
Drawings 2d view construction blocks of staircase autocad software file
Description
Drawings 2d view construction blocks of staircase autocad software file that shows the plan of staircase construction with staircase and railing riser tread details also shown on drawings. Dimension detaisl and construction concrete masonry details also shown in drawings.
Uploaded by:
Eiz
Luna

