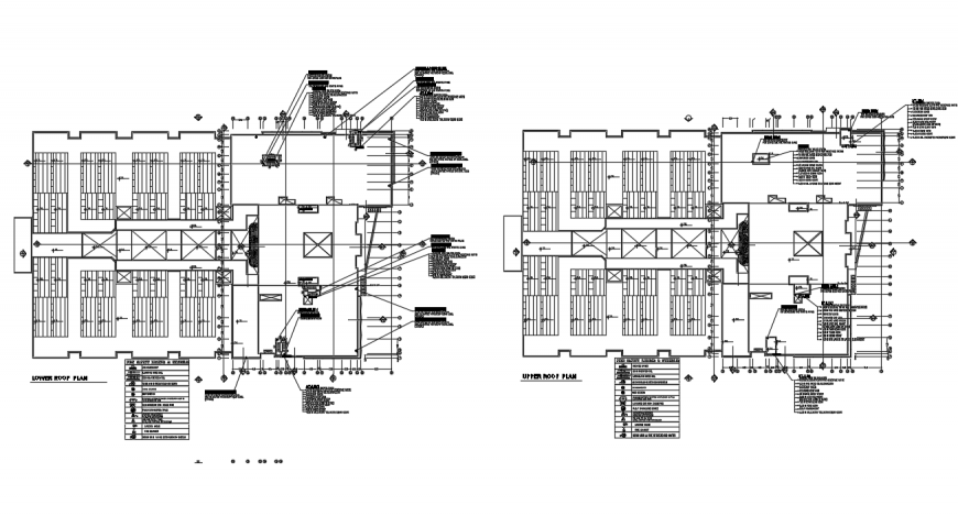
Corporate Building Construction Upper Roof Plan detail With elevation
Description
Corporate Building Construction Upper Roof Plan detail With elevation, Machine Room, Stair, walls enclosure 1.0 hr fire resistance rating, 30 min.fire rated window, rising main & fire extinguishing system detail.
Uploaded by:
Eiz
Luna

