Common hotel toilet section, plan and installation cad drawing details dwg file
Description
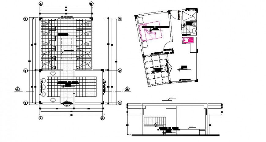
Common hotel toilet section, plan and installation cad drawing details here you can download a free auto-cad file of toilet plan details with toilet sectional details and passage, sanitary equipment installation details, doors and ventilation details with plumbing details and interior details with dimensions details, wall section details and much more of sanitary installation details.
File Type:
DWG
File Size:
6.7 MB
Category::
Interior Design
Sub Category::
Bathroom Interior Design
type:
Gold
Uploaded by:
Eiz
Luna

