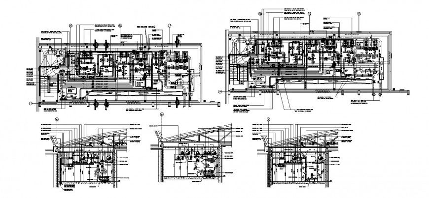
All sided section and plumbing structure drawing details of chilled water pump room dwg file
Description
All sided section and plumbing structure drawing details of chilled water pump room that includes a detailed view of controller-to-valve details & wiring diagram, pipe and wire trenching, main isolation valve assembly control valve assembly with air / vacuum relief valve, drain/flush valve, dripper for palms and trees, drip line connection details, pvc to pe drip line take-off and drip irrigation for groundcovers, concrete thrust blocks, dimensions details, material details and much more of room details.
Uploaded by:
Eiz
Luna
