Dynamic latest bathtub elevation blocks with dimensions dwg file
Description
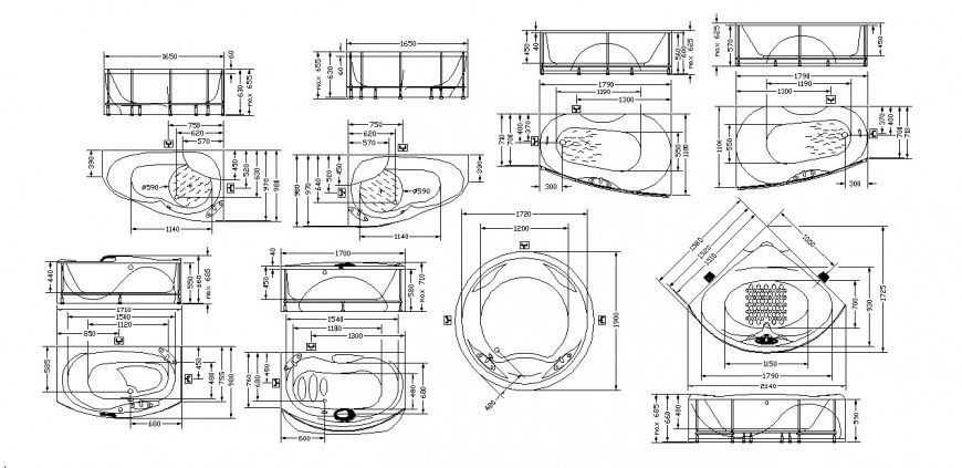
Dynamic latest bathtub elevation blocks with dimensions that include a detailed view of multiple bath tub blocks with dimensions and measures with colours details and size details, type details etc for multi-purpose uses for cad projects.
File Type:
DWG
File Size:
6.5 MB
Category::
Dwg Cad Blocks
Sub Category::
Sanitary CAD Blocks And Model
type:
Gold
Uploaded by:
Eiz
Luna

